Listed by Keller Williams Realty
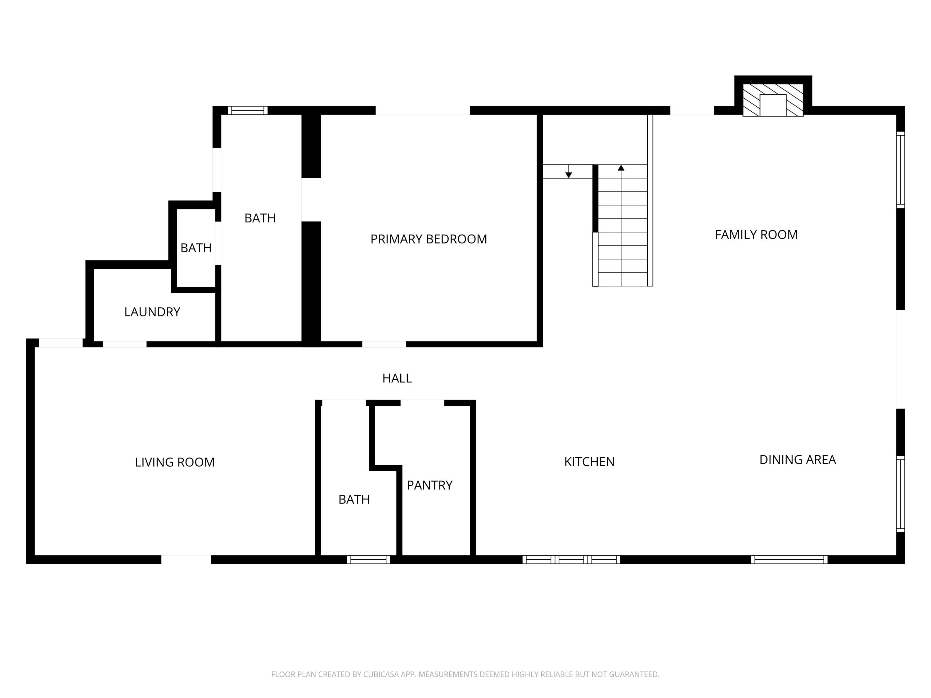
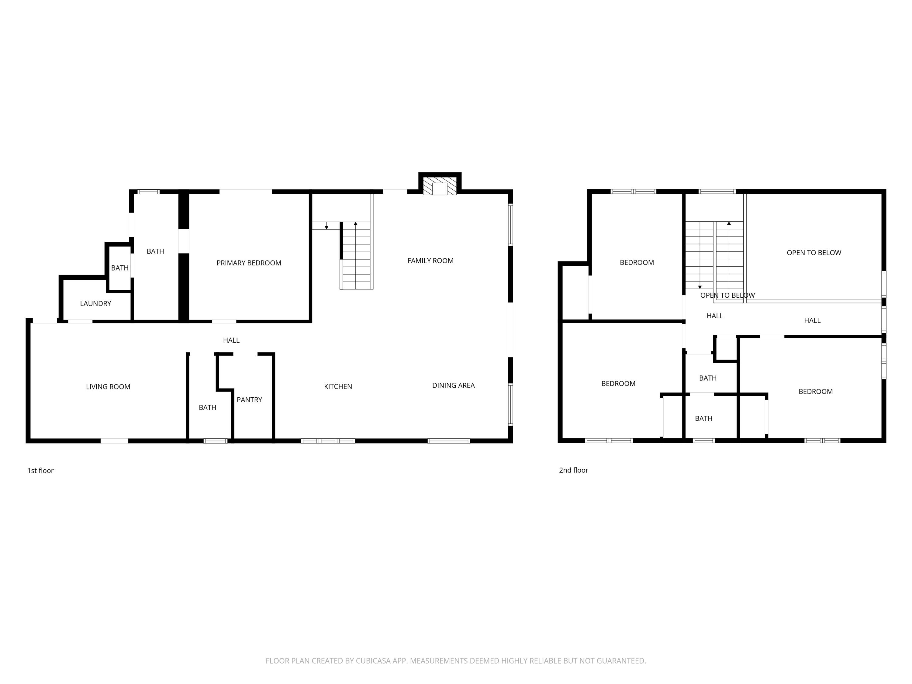
Newly built and finished in 2025, this exceptional home at 17 Moose Ridge Road offers modern comfort, refined craftsmanship, and breathtaking lake and panoramic mountain views throughout. Set on 1.01 acres, the property provides privacy, scenery, and a peaceful Rangeley setting with over 2,000 square feet of thoughtfully designed living space. The open-concept main living area is filled with natural light and perfectly positioned to capture the surrounding views. The kitchen is a true showpiece, featuring top-of-the-line appliances, custom cabinetry, premium countertops, and carefully selected designer light fixtures. High-end finishes extend throughout the home, including beautifully appointed bathrooms and a spacious main-level primary suite. The hot tub is located perfectly to catch sunsets at the end of the day as you unwind from hours of recreation. Large windows frame the ever-changing landscape, allowing you to enjoy lake vistas and sweeping mountain scenery from multiple rooms. Quality construction and materials ensure year-round comfort, while the home's exterior blends seamlessly with its natural surroundings. Located just minutes from Rangeley Lake, Saddleback Mountain, downtown Rangeley, and direct access to the snowmobile trails, this property is ideal as a primary residence, vacation retreat, or investment opportunity. Offering luxury, views, and low-maintenance living in one of Maine's premier four-season destinations.

Listing Tools (detailViewNewGen)

Property Details of 17 Moose Ridge Road

Property Details

Interior Features

Utilities and Appliances

Community

Other Details

Map Location

Listing data is derived in whole or in part from the Maine IDX & is for consumers' personal, non commercial use only. Dimensions are approximate and not guaranteed. All data should be independently verified. ©2026 Maine Real Estate Information System, Inc. All Rights Reserved. equal opportunity housing logo   Privacy Policy

Morton & Furbish Real Estate participates in ©2026 Maine Listings Internet Data Exchange program, allowing us to display other Maine IDX Participants' listings. This website does not display complete listings. Certain listings of other real estate brokerage firms have been excluded. Mortgage figures are estimates. Check with your bank or proposed mortgage company for actual interest rates. This product uses the FRED® API but is not endorsed or certified by the Federal Reserve Bank of St. Louis.

Hi there! How can we help you?

Contact us using the form below or give us a call.

Send Us A Message:

I agree to receive marketing and customer service calls and text messages from Morton & Furbish Real Estate. To opt out, you can reply 'stop' at any time or click the unsubscribe link in the emails. Consent is not a condition of purchase. Msg/data rates may apply. Msg frequency varies. Privacy Policy.

Do not fill in this field:

This site is protected by reCAPTCHA and the Google Privacy Policy and Terms of Service apply.

Hi there! How can we help you?

Contact us using the form below or give us a call.

Send Us A Message:

Do not fill in this field:

This site is protected by reCAPTCHA and the Google Privacy Policy and Terms of Service apply.

Hi there! How can we help you?

Contact us using the form below or give us a call.

Send Us A Message:

Do not fill in this field:

This site is protected by reCAPTCHA and the Google Privacy Policy and Terms of Service apply.

Do not fill in this field:

This site is protected by reCAPTCHA and the Google Privacy Policy and Terms of Service apply.

Do not fill in this field:

This site is protected by reCAPTCHA and the Google Privacy Policy and Terms of Service apply.

Do not fill in this field:

This site is protected by reCAPTCHA and the Google Privacy Policy and Terms of Service apply.

$

Do not fill in this field:

This site is protected by reCAPTCHA and the Google Privacy Policy and Terms of Service apply.